DESIGNING

Architecture at KLINGMANN starts with human interaction. Human interaction informs the designs of buildings, streets, parks and plazas that engage people, connect communities and protect the natural world.

The user experience is at the center of our design process. That’s how we create environments that invigorate the senses and the body while fostering exploratory quests and social interaction.

A relationship between multiple disciplines and cultures is a driving force in all of KLINGMANN’s work. This is demonstrated through the company’s history of combining strategic planning with creative design processes, where urban design, branding, placemaking, lifestyle, landscape and architecture are all considered together, from the earliest stages possible.  

Likewise, we have a long-standing culture of collaborating with people from different countries and backgrounds who consistently imbue our design process with innovative ideas and methods.  

 
 
 

ARCHITECTURE CASE STUDIES

 
 
 

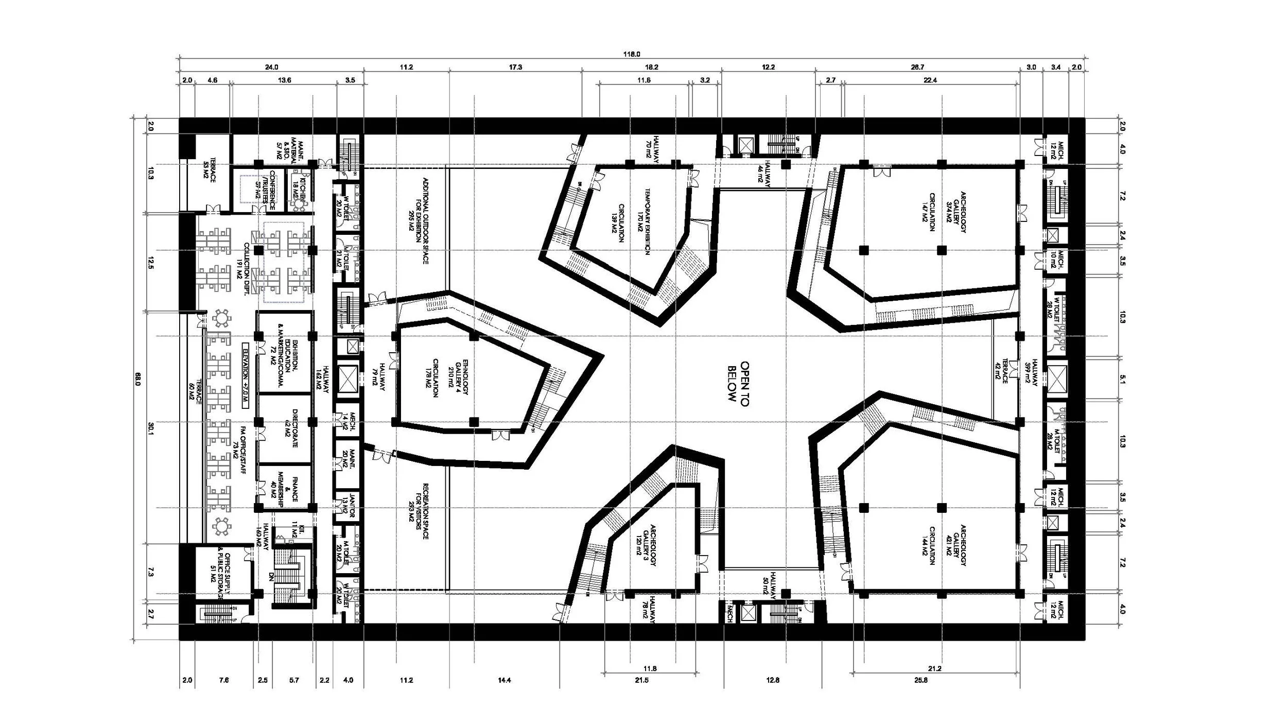
DESIGNING PROCESS NATIONAL MUSEUM KABUL

 
 
 

SERVICES

 
 

Urban Design
Market Research
Site Assessment
Feasibility Study
Highest & Best Use
Master Planning
Public Space Design
Urban Connectivity

Architectural Design
Architectural Design
Project Management
Facilities Planning
Budgeting
Construction Documents
Coordination of Consultants
Contract Administration

Landscape Design
Concept Landscape Design
Design Development
Construction Documentation
On-Site Reviews
Contract Administration
Plant Procurement
Installation

Interior Design
Facilities Programming
Value Engineering
Interior Space Planning
Interior Design Documentation
Specifications
Furniture, Finishes, Fixtures
Procurement Mangagement